起动机不工作故障诊断流程
车型:雪弗兰科鲁兹1.6AT
诊断流程:
一、车轮挡块、车外三件套、车内三件套、尾气抽排安装,油液液位检查,蓄电池电压检查。
二、上车检查换挡杆是否在“P”或者“N”,若不在,调整至相应位置,否则也会造成起动机无法工作。
三、打开点火开关至ON位置,检查发动机故障指示灯(黄色)是否点亮,正常应点亮。

1)若不亮(此时发动机电脑ECM电源电路出现故障),应检查相关电路
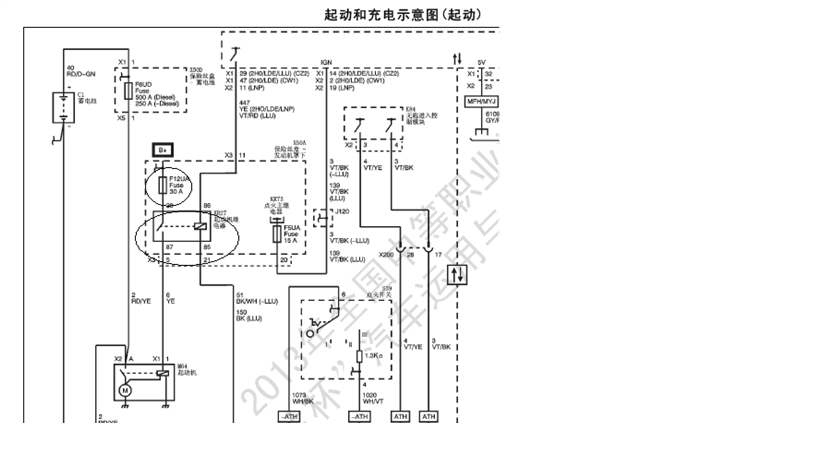
此时检查F2UA保险丝是否正常
F5UA保险丝是否正常
若F5UA保险丝没有电压(点火开关位于
ON位置时有电),检查KR73点火继电器
是否正常,做继电器实验判断。
维修手册9-27

继电器盒(F2UA、F5UA、KR73位置)

2)若打开点火开关时,故障指示灯点亮,起动机还是不工作
此时应检查起动机电路,F12UA保险丝,KR27起动机继电器
维修手册9-367

继电器位置(F12UA,KR27位置)

